Projekt Beschreibung
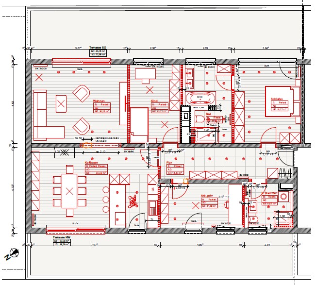
Projekt: Umbau und Komplettsanierung eines Penthouses
Lage: 81679 München-Herzogpark
Bauherr: privat
Besonderheit(en):
komplett bewohnter Bestand
Projekt: Umbau und Komplettsanierung eines Penthouses
Lage: 81679 München-Herzogpark
Bauherr: privat
Besonderheit(en):
komplett bewohnter Bestand